Hotels

Bed & Breakfast
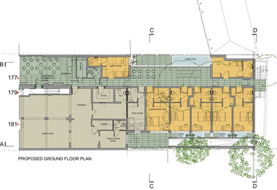
177 – 181 Lewisham Way, London SE4 1UY

New build extension and conversion for a Bed & Breakfast lodge, at the back of existing high street shops and a private residential development. Accommodation for 15 guestrooms including one wheelchair user guestroom at ground floor level. The design proposed a car free development. Estimated construction cost £896,000 in 2006

Loading image. Please wait
Twitter icon LinkedIn icon Facebook icon